施工事例
マンションリノベーション:東京都 世田谷区 Y様邸
自然素材にこだわったナチュラルな空間に マンションリノベーション
生活に合わせて間取りを変更 人にやさしい生活環境へ
設計ポイント
人にやさしい生活環境のためのリノベーション
住まい方に合わせた間取り変更と、自然素材にこだわったナチュラルな空間が完成しました。
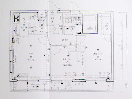
主なリフォームは...
・間仕切り壁【撤去】(壁[LD-洋室2]→3枚引き戸)
・間仕切り建具【交換】(ドア[各部屋、クローゼット、トイレ]→引戸)
・洗面台【交換】
・床【張り替え】(フローリング→杉無垢フローリング
[蝋密ワックス仕上げ])
・壁【変更】(ビニルクロス→珪藻土塗り)
・天井【変更】(ビニルクロス→珪藻土クロス貼り)
住まい方に合わせた間取り変更と、自然素材にこだわったナチュラルな空間が完成しました。
主なリフォームは...
・間仕切り壁【撤去】(壁[LD-洋室2]→3枚引き戸)
・間仕切り建具【交換】(ドア[各部屋、クローゼット、トイレ]→引戸)
・洗面台【交換】
・床【張り替え】(フローリング→杉無垢フローリング
[蝋密ワックス仕上げ])
・壁【変更】(ビニルクロス→珪藻土塗り)
・天井【変更】(ビニルクロス→珪藻土クロス貼り)
物件写真
-
部屋を狭い印象にしてしまっていた間仕切り壁を撤去し、3枚引き戸に変えました。
-
クローゼットや各部屋の扉を引き戸に変更しました。
引き戸にすることによりスペースもとらず、すっきりとした空間になります。 -
洗面台もお洒落なものを採用。
床もサーモタイルに張り替えました。 -
フローリングから、蝋蜜ワックス仕上げの杉無垢フローリングに。
-
壁はビニルクロスから珪藻土塗りに。
天井もビニルクロスから珪藻土クロス貼りに変更しました。
物件概要
- 所在地
- 東京都世田谷区
- 構造・工法
- 鉄筋コンクリート壁式構造
- 規模
- 2階部(地上3階建て)
- 建築面積
- 53.58m2(専有)、9.002(バルコニー)
- 延床面積
- 62.58m2
- 築年数
- 1996年8月竣工物件(築14年)


























